Nachhaltige Werteentwicklung in einer der begehrtesten Lagen des Darß.
Die baltic Liegenschaften und Grundbesitzgesellschaft mbH stellt mit dem Projekt „Auf dem Branden 30“ ihre Expertise in der strategischen Grundstücksentwicklung unter Beweis. Nach dem erfolgreichen Ankauf des großzügigen Flurstücks haben wir durch eine präzise Sondierung und Teilung zwei exklusive Einzelflurstücke geschaffen, um das volle Potenzial dieses Standorts zu entfalten.
Highlights
Beste Lage in Born: Gelegen in einer ruhigen, naturverbundenen Umgebung, die den typischen Charme des Fischerdorfes Born am Darß widerspiegelt.
Exklusive Bebauung: Modernes Wohnkonzept, das speziell auf die Bedürfnisse anspruchsvoller Feriengäste oder Eigennutzer zugeschnitten ist.
Vertrieb gestartet: Nutzen Sie die Gelegenheit, sich bereits jetzt detaillierte Informationen zu den entstehenden Einheiten und den attraktiven Flurstücken zu sichern.
Information
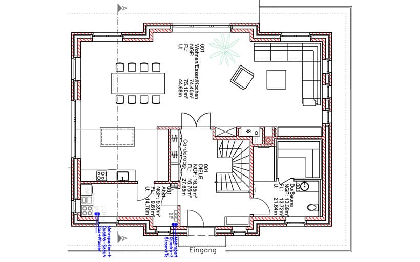
Entdecken Sie unterhalb die technischen Details und Grundrisse zu diesem besonderen Bauvorhaben in Born.